Modell ML2
Ein Mikrohaus für Genießer
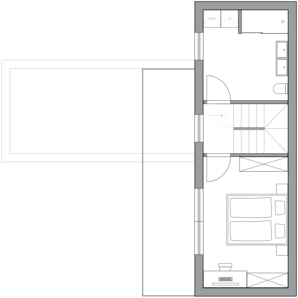
Auch das ML2 mit seinen rund 55 qm eignet sich ideal als Rückzugsort für eine oder zwei Personen. Dabei wird es trotz übersichtlicher Wohnfläche dem Anspruch nach moderner und gleichermaßen außergewöhnlicher Architektur in jedem Fall gerecht.

Wohnfläche:
55,1 qm
Zimmer:
3
Außenmaße:
10,2 x 10,2 m
überdachte Terrasse:
25 qm
überdachte Fläche vorne:
5,6 qm
Balkon:
14,1 qm
HINWEIS:
Aktuell werden an diesem Hausmodell neue Fachplanungen ausgeführt. Im Zuge dessen können sich noch Änderungen an den hier gemachten Maßangaben ergeben. Bis voraussichtlich April 2026 werden wir die finalen Daten, Modellabbildungen und Preise hier bereitstellen. Treten Sie gerne schon vorher in Kontakt mit uns – bei Fragen oder zur Abstimmung.

Beeindruckender an- und Ausblick
Ganz nach der Prämisse „minimalistische Gestaltung verlangt maximale Präzision“ haben wir auch bei diesem Modell viel Wert auf eine optimale Grundrissplanung gelegt. So wird z. B. kein Raum durch unnötige Durchgangsbereiche verschwendet. Auch schließt sich im Erdgeschoss eine offene Küche direkt an den großzügigen Wohnbereich an.
Im Außenbereich entstehen durch die L-förmige Anordnung der Module zwei Überdachungen. Die eine sorgt für einen geschützten Hauseingang, die andere kann z. B. als Terrasse oder PKW-Stellplatz genutzt werden. Eine Etage darüber kann man auf dem Balkon die ersten Sonnenstrahlen des Tages direkt nach dem Aufstehen in exponierter Lage genießen.
Zum Vergrößern bitte anklicken.
Vorläufige Skizzen. Küchen, Möbel und sonstiges Inventar sind nur beispielhaft platziert.
Gebaut
... in Deutschland
... aus Massivholz
... in Modulbauweise

Ausgestattet
unter anderem mit:
> Fertigung nach neuesten Gebäudeenergiegesetzen
> Bezugsfertiger Ausbau. Alle Maler- und Bodenverlegearbeiten bereits im Standard enthalten.
> Vollständige Sanitärinstallation inkl. Wandbelägen, ebenerdiger Duschlösung, WC, Waschtisch und Wasserhahn
> Infrarotheizungen mit intelligenten Thermostaten
> effiziente Durchlauferhitzer für Bad und Küche
> Innentüren mit Drücker
> Zugang und Terrassentüren schwellenarm ausgeführt
> Wärmedämmverbundsystem und Fassade mit HPL-Platte
> Hauseinführung für den Hausanschluss


